Facianın raporu ortaya çıktı: Yangın nasıl başladı?
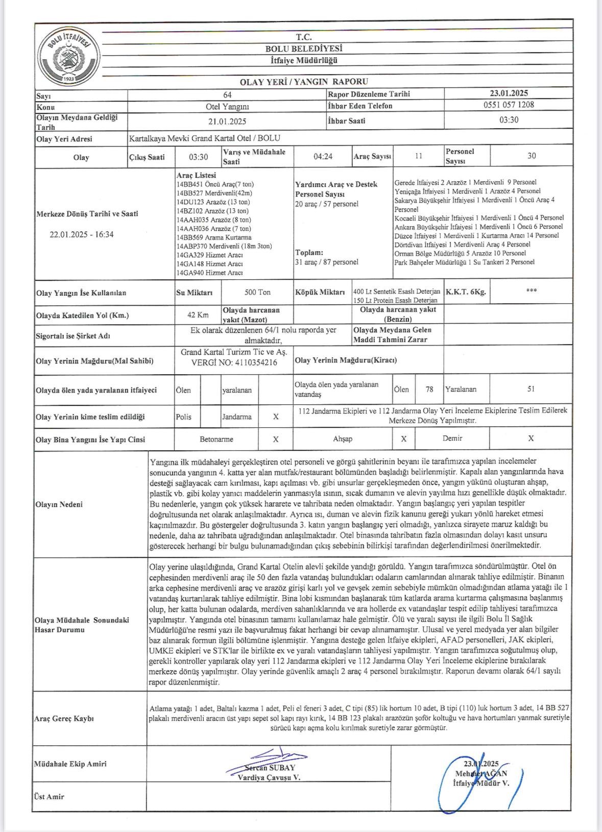
Bolu'da 78 kişinin hayatını kaybettiği Grand Kartal Otel yangınına ilişkin itfaiye raporu ortaya çıktı. Raporda, yangının 4'üncü katta bulunan mutfak/restoran bölümünden başladığı, 50'den fazla vatandaşın camlardan kurtarıldığı belirtildi.
Kartalkaya Kayak Merkezi'ndeki Grand Kartal Otel'de 21 Ocak Salı günü 03.30'da çıkan ve 78 kişinin ölümüne sebep olan yangına ilişkin Bolu Belediyesi İtfaiye Müdürlüğünce hazırlanan olay yeri yangın raporu ortaya çıktı.

Raporda, 03.30'da ilk ihbarın ulaştığı, 11 araç ve 30 personelle itfaiye ekiplerinin yola çıkmasının ardından 42 kilometre yol kat ederek saat 04.24'te olay yerine ulaşıldığı belirtildi. Söndürme çalışmalarında 500 ton suyun kullanıldığının kaydedildiği raporda, yangının nedenine ve yaşananlara ilişkin şu ifadeler yer aldı:
'Yangına ilk müdahaleyi gerçekleştiren otel personeli ve görgü şahitlerinin beyanı ile tarafımızca yapılan incelemeler sonucunda yangının 4'üncü katta yer alan mutfak/restoran bölümünden başladığı belirlenmiştir. Kapalı alan yangınlarında hava desteği sağlayacak cam kırılması, kapı açılması ve bunun gibi unsurlar gerçekleşmeden önce, yangın yükünü oluşturan ahşap, plastik vb. gibi kolay yanıcı maddelerin yanmasıyla ısının, sıcak dumanın ve alevin yayılma hızı genellikle düşük olmaktadır. Bu nedenlerle, yangın çok yüksek hararete ve tahribata neden olmaktadır. Yangın başlangıç yeri yapılan tespitler doğrultusunda net olarak anlaşılmaktadır. Ayrıca ısı, duman ve alevin fizik kanunu gereği yukarı doğru hareket etmesi kaçınılmazdır. Bu göstergeler doğrultusunda 3'üncü katın yangın başlangıç yeri olmadığı, yalnızca sirayete maruz kaldığı bu nedenle daha az tahribata uğradığından anlaşılmaktadır. Otel binasında tahribatın fazla olmasından dolayı kasıt unsuru gösterecek herhangi bir bulgu bulunmadığından çıkış sebebinin bilirkişi tarafından değerlendirilmesi önerilmektedir.'

'50'den fazla vatandaş camlardan kurtarıldı'
50'den fazla kişinin merdivenli itfaiye aracıyla otelin camlarından, 1 kişinin de atlama yatağı ile kurtarıldığının aktarıldığı raporda, 'Olay yerine ulaşıldığında Grand Kartal Otel'in alevli şekilde yandığı görüldü. Yangın tarafımızca söndürülmüştür. Otel ön cephesinden merdivenli araç ile 50'den fazla vatandaş, bulundukları odaların camlarından alınarak tahliye edilmiştir. Binanın arka cephesine merdivenli araç ve arazöz girişi karlı yol ve gevşek zemin sebebiyle mümkün olmadığından atlama yatağı ile 1 vatandaş kurtarılarak tahliye edilmiştir. Bina lobi kısmından başlanarak tüm katlarda arama-kurtarma çalışmasına başlanmış olup, her katta bulunan odalarda, merdiven sahanlıklarında ve ara hollerde hayatını kaybeden vatandaşlar tespit edilip tahliyesi tarafımızca yapılmıştır. Yangında otel binasının tamamı kullanılamaz hale gelmiştir. Ölü ve yaralı sayısı ile ilgili Bolu İl Sağlık Müdürlüğü'ne resmi yazı ile başvurulmuş fakat herhangi bir cevap alınamamıştır. Ulusal ve yerel medyada yer alan bilgiler baz alınarak formun ilgili bölümüne işlenmiştir. Yangına desteğe gelen itfaiye ekipleri, AFAD personelleri, Jandarma Arama Kurtarma (JAK) ekipleri, UMKE ekipleri ve STK'lar ile birlikte hayatını kaybeden ve yaralı vatandaşların tahliyesi yapılmıştır. Yangın tarafımızca soğutulmuş olup, gerekli kontroller yapılarak olay yeri jandarma ekipleri ve jandarma olay yeri inceleme ekiplerine bırakılarak merkeze dönüş yapılmıştır. Olay yerinde güvenlik amaçlı 2 araç, 4 personel bırakılmıştır. Raporun devamı olarak 64/1 sayılı rapor düzenlenmiştir' ifadelerine yer verildi.
Çiftçi isyan etti, satamadığı ürünü traktörle sürdü
Dolandırıcılık şebekesine operasyon
Sosyetenin kalbi yerle bir edildi
İlber Ortaylı'dan acı haber
Erkan Aydın: Mazeret değil, çözüm üretiyoruz
Kadının telefonun gasp eden suç makinasına Bursa'da operasyon
Kavurma yapılan atın sahibi isyan etti
Tırın yükü kaydı, tehlikeli anlar kamerada
Bursa'da 200 koyun alevlerin içinde kaldı
Bursa'nın Yıldırım İlçesi'nde sular kesilecek!
Driftçi maganda cezadan kaçamadı
Cumhuriyet’in sağlık alanındaki başarıları sergiyle anlatıldı
Başkan Erkan Aydın, vatandaşlarla iftar coşkusu yaşadı
Bursaspor Başkanı Enes Çelik'ten TFF büyük tepki
Dikkat: Bursa'nın o ilçesinde su kesintisi
Gemlik'te Ramazan coşkusu, hep birlikte oruç açtılar
Türkiye’nin en büyük karting pistİ Bursa'da hizmete giriyor
Çocuklar Mehmet Akif Ersoy'u yakından tanıdı
Mustafa Bozbey, Sancak'tan mesaj verdi: Ortak geçmişi hatırlıyoruz
Flyadeal havayolundan Bursa çıkarması
Egzoz patlatan magandaya ceza yağdı
Alkollü hemşire yaşlı kadına çarpıp öldürdü!
Yarış atını kestiler, belediyenin aşevinde kavurma yapıp yedirdiler
Evlerini yıkan CHP'li Mudanya Belediye Başkanı Dalgıç'a tepki gösterdiler
Gemlik'te üç harfli marketlere baskın! Vatandaşı mağdur ediyorlar
BTSO Başkanı Burkay: Kurumlara bilgi ve dayanışma ruhu hayat verir
Bencil sürücüler dronla tespit edildi
Trabzonspor takım otobüsü taşlanmıştı, 3 polisle ilgili flaş gelişme
Özgür Özel'den Bülent Arınç'a: Bizi hiç yalnız bırakmadı
Doğum izni ve ödemeler ailelerin yüzünü güldürecek
Yükleniyor
